Coburg:
VERKAUFT - GELEGENHEIT: Wohn- und Geschäftshaus in Coburgs historischer Altstadt!
Objekt-Nr.: 676

Ansicht

2. OG Küche

EG Laden Imbiss

Treppenhaus

2.OG Flur

2.OG Wohnen

2.OG Bad

2.OG Schlafen 1

2.OG Schlafen 2

2.OG Gäste

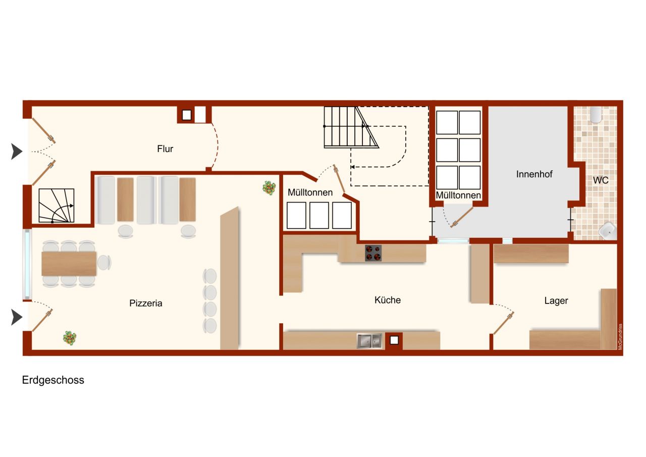
Grundriss Erdgeschoss

Grundriss 1. Obergeschoss

Grundriss 2. Obergeschoss

Grundriss Dachgeschoss














Preis:
Preis auf Anfrage
Wohnfläche ca.:
232 m²
Grundstück ca.:
147 m²
Zimmeranzahl:
10
*Diese Immobilie ist bereits verkauft.
Lassen Sie sich bei uns vormerken und erhalten bevorzugt neue Objekte!*
Sichern Sie sich diese solide und vor allem auch schöne Kapitalanlage in Coburg-Stadt. Nur wenige Schritte zum Theater/Schlossplatz/Hofgarten oder in die Fußgängerzone bzw. zum Marktplatz!
Das Wohn- u. Geschäftshaus bietet 3 Wohnungen sowie eine Gewerbeeinheit.
An Wohnfläche stehen insgesamt ca. 232 m² zur Verfügung.
Die vermietete Gewerbeeinheit ist ca. 45 m² groß. Der attraktive Imbiss ist mit seinem Abhol- u. Lieferservice in der Innenstadt, Nähe Theater und Schlossplatz sehr gut aufgestellt und arbeitet auch in Coronazeiten erfolgreich weiter.
Das Anwesen ist teilunterkellert (Gewölbekeller) und bietet darüber hinaus einen kleinen Innenhof.
Das 147 m² große Grundstück wird in dieser absoluten Zentrums-Lage von der Stadt Coburg mit einem Bodenrichtwert von 2020 in Höhe von 465 € / m², also mit 68.355 € bewertet.…
Jede Wohnung besitzt eine eigene Gastherme, daher rechnet jeder Wohnungsmieter mit dem Rechnungssteller direkt ab. Der Idealfall für einen Kapitalanleger, weil sehr zeitsparend. Hier muss sich der Vermieter nicht selbst um die jährliche Abrechnung kümmern, das erledigen die Stadtwerke.
Die 4,5-Zimmer-Wohnung mit 90 m² Wohnfläche im 1. Obergeschoss steht für eine Neuvermietung bzw. für einen Selbstnutzer frei zur Verfügung.
Im 2. Obergeschoss wird die schöne 4,5-Zimmer-Wohnung mit 90 m² Wohnfläche zum 01.08.2021 frei.
Die 2,5-Zimmer-Dachgeschoss-Wohnung mit 55 m² Wohnfläche ist vermietet. Hier haben Sie noch eine Ausbauressource von ca. 25 m² zur Verfügung.
In dieser begehrten Innenstadtlage sind die schönen großen Wohnungen sehr gut vermietbar. Selbstverständlich könnte hier auch ein Käufer selbst einziehen, wenn er eine schöne Stadtwohnung für sich oder die Familie (Sohn oder Tochter) sucht.
Haustyp: Mehrfamilienhaus
Etagenanzahl: 4
Provisionspflichtig: ja
Provision: 4,76 % inkl. MwSt
Küche: Einbauküche
Bad: Dusche, Wanne, Fenster
Anzahl Schlafzimmer: 7
Anzahl Badezimmer: 3
Keller: teil unterkellert
Baujahr: 1860
Bodenbelag: Fliesen, Laminat
Heizung: Etagenheizung
Befeuerungsart: Gas
Energieausweistyp: Dieses Gebäude unterliegt nicht den Anforderungen der GEG
Unser Provisionsanspruch in Höhe von 4,76 % inkl. der gesetzlichen Mehrwertsteuer besteht und wird fällig, sobald aufgrund unseres Nachweises bzw. unserer Vermittlung oder Inanspruchnahme unserer Maklertätigkeit bezüglich des von uns benannten Objektes ein Vertrag geschlossen bzw. beurkundet worden ist.
Alle Angaben sind ohne Gewähr und basieren ausschließlich auf Informationen, die von unserem Auftraggeber übermittelt wurden. Wir übernehmen ausdrücklich keine Gewähr für die Vollständigkeit, Richtigkeit und Aktualität dieser Angaben.
Sie denken ebenfalls an den Verkauf Ihres Objektes?
Gerne bewerten wir auch Ihre Immobilie unverbindlich und kostenfrei.
Bei einer Immobilienvermittlung geht es um Werte. Und genau diese Werte wissen wir seit vielen Jahren zu schätzen. Darüber hinaus ist unser Ziel unseren Kunden nicht nur ein gutes Geschäft, sondern auch ein gutes Gefühl zu vermitteln. Natürlich spielt die Immobilie dabei eine wichtige Rolle, doch der Mensch steht bei uns im Mittelpunkt!
Wenn Makler – dann Reinhardt!
Wir weisen auf unsere Allgemeinen Geschäftsbedingungen hin. Durch weitere Inanspruchnahme unserer Leistungen erklären Sie die Kenntnis und Ihr Einverständnis.
Das könnte Ihnen auch gefallen

Immobilien Reinhardt GmbH
Herr Klaus Scherbel
Neustadter Str. 27
96450 Coburg
Telefon: +49 9561 4079790
96450 Coburg
































