Meeder:
VERKAUFT - Kapitalanlage in 8 Wohneinheiten - vollvermietetes Mehrfamilienhaus
Objekt-Nr.: 1302

Luftibild

20220223 150919

Innenhof mit Wohnungszugängen

Innenhof / Nebengebäude

Grundriss Erdgeschoss

Grundriss Obergeschoss

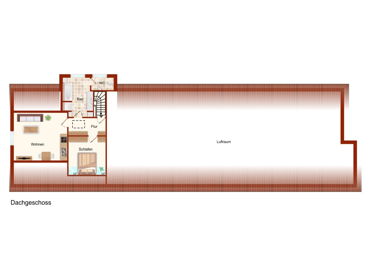
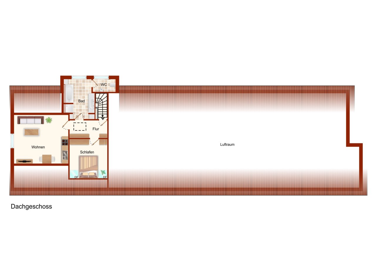
Grundriss Dachgeschoss







Preis:
Preis auf Anfrage
Wohnfläche ca.:
526 m²
Grundstück ca.:
1.057 m²
Zimmeranzahl:
19
* Diese Immobilie ist bereits verkauft, nutzen Sie die Chance, lassen Sie sich bei uns vormerken und erhalten bevorzugt immer die neuesten Objekte! *
Eine solide Kapitalanlage mit attraktiver Rendite erwartet Sie bei diesem ursprünglich um ca. 1700 erbauten Mehrfamilienhaus. Durch unterschiedliche Um- und Anbauten besteht die Immobilie derzeit aus insgesamt 8 Einheiten mit einer Gesamtwohnfläche von ca. 526 m². 7 davon sind überwiegend & konstant bereits seit mehreren Jahren an die gleichen Bewohner vermietet - Kaltmieteinnahmen hierbei 23.100,- € / Jahr. Die 8. Wohnung (ca. 100 m²) ist mit einem Wohnrecht des ehemaligen Eigentümers versehen und ist nicht in der angegebenen Miete berücksichtigt.
Neben dem Wohnhaus bietet das ca. 1.057 m² große Grundstück nützliche Nebengebäude (ehem. Ställe und Scheunen), die sich optimal als Werkstatt oder Lagerräumlichkeiten anbieten. Zudem verfügt das Anwesen über einen großen Innenhof und somit Platz für ausreichend KFZ-Stellplätze.
Obwohl im Jahr 1994 umfangreiche Sanierungen durchgeführt wurden, sind dennoch Modernisierungsmaßnahmen in den nächsten Jahren zu planen.
Aus Gründen der Privatsphäre werden keine Aufnahmen der vermieteten Räumlichkeiten veröffentlicht. Gerne erhalten Sie auf Nachfrage, nachdem Sie das Kontaktformular vollständig ausgefüllt haben, einen 360 Grad Rundgang zur Immobilie. So können Sie sich bequem von zu Hause aus ein erstes Bild dieses Angebotes machen.
Haustyp: Mehrfamilienhaus
Etagenanzahl: 3
Provisionspflichtig: ja
Provision: 3,57 % inkl. MwSt.
Keller: teil unterkellert
Anzahl der Parkflächen: 1 x Garage
Baujahr: 1700
Mieteinnahmen p.a.: 22.860 €
Heizung: Zentralheizung
Befeuerungsart: Öl
Energieausweistyp: Bedarfsausweis - gültig vom 24.02.2022 bis 23.02.2032
Energieeffizienz-Klasse: E
Baujahr laut Energieausweis: 1700
Unser Provisionsanspruch in Höhe von 3,57 % inkl. der gesetzlichen Mehrwertsteuer besteht und wird fällig, sobald aufgrund unseres Nachweises bzw. unserer Vermittlung oder Inanspruchnahme unserer Maklertätigkeit bezüglich des von uns benannten Objektes ein Vertrag geschlossen bzw. beurkundet worden ist.
Alle Angaben sind ohne Gewähr und basieren ausschließlich auf Informationen, die von unserem Auftraggeber übermittelt wurden. Wir übernehmen ausdrücklich keine Gewähr für die Vollständigkeit, Richtigkeit und Aktualität dieser Angaben.
Sie denken ebenfalls an den Verkauf Ihres Objektes?
Gerne bewerten wir auch Ihre Immobilie unverbindlich und kostenfrei.
Bei einer Immobilienvermittlung geht es um Werte. Und genau diese Werte wissen wir seit vielen Jahren zu schätzen. Darüber hinaus ist unser Ziel unseren Kunden nicht nur ein gutes Geschäft, sondern auch ein gutes Gefühl zu vermitteln. Natürlich spielt die Immobilie dabei eine wichtige Rolle, doch der Mensch steht bei uns im Mittelpunkt!
Wenn Makler – dann Reinhardt!
Wir weisen auf unsere Allgemeinen Geschäftsbedingungen hin. Durch weitere Inanspruchnahme unserer Leistungen erklären Sie die Kenntnis und Ihr Einverständnis.
Das könnte Ihnen auch gefallen
VERKAUFT - Beliebtes Gasthaus mit tollem Saal, Gästezimmern und Wohneinheit!
VERKAUFT - Zentrales Mehrfamilienhaus mit Ladenfläche!
VERKAUFT - Ihr modernes & großzügiges Zuhause der vielen Möglichkeiten!

Immobilien Reinhardt GmbH
Herr Daniel Alles
Telefon: 09561 40 79 79-0
Mobil: +49 175 7225836
96484 Meeder




































