Coburg:
VERKAUFT - Mehrfamilien-Stadthaus mit Ausbaupotential!
Objekt-Nr.: 510

Hauseingang

Außenansicht

Eingangsbereich

Treppenhaus

Wohnbereich Wohnung EG

Wohnbereich Wohung 1 OG

Schlafzimmer Wohnung 1 OG

Bad Wohnung 1 OG

Flur Wohnung 2 OG

Wohnbereich Wohnung 2 OG

Essbereich Wohnung 2 OG

Küche Wohnung 2 OG

Schlafzimmer Wohnung 2 OG

Wohnbereich Wohnung DG

Bad Wohnung DG

Schlafzimmer Wohnung DG

Balkon Wohnung DG

Sanierungsbedürftiges Hinterhaus

Sanierungsbedürftiges Hinterhaus

Innenhof

Grundriss EG

Grundriss 1. OG

Grundriss 2. OG

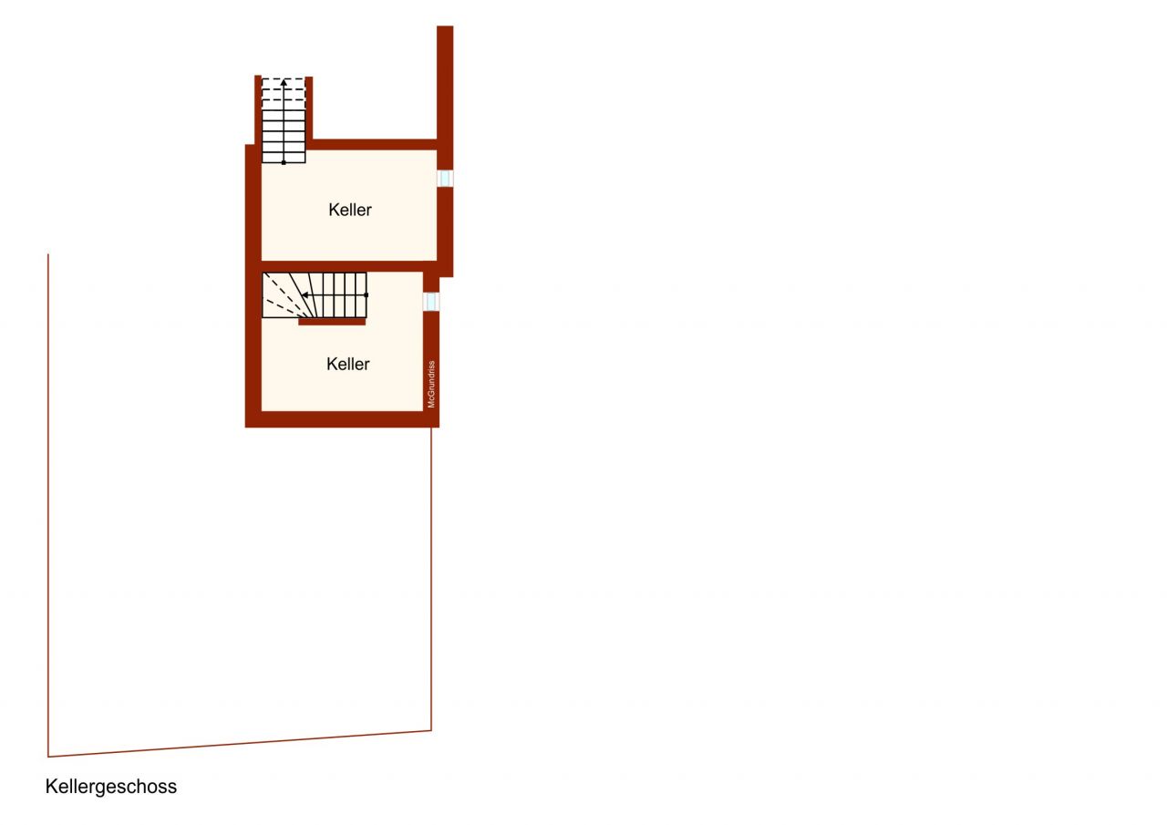
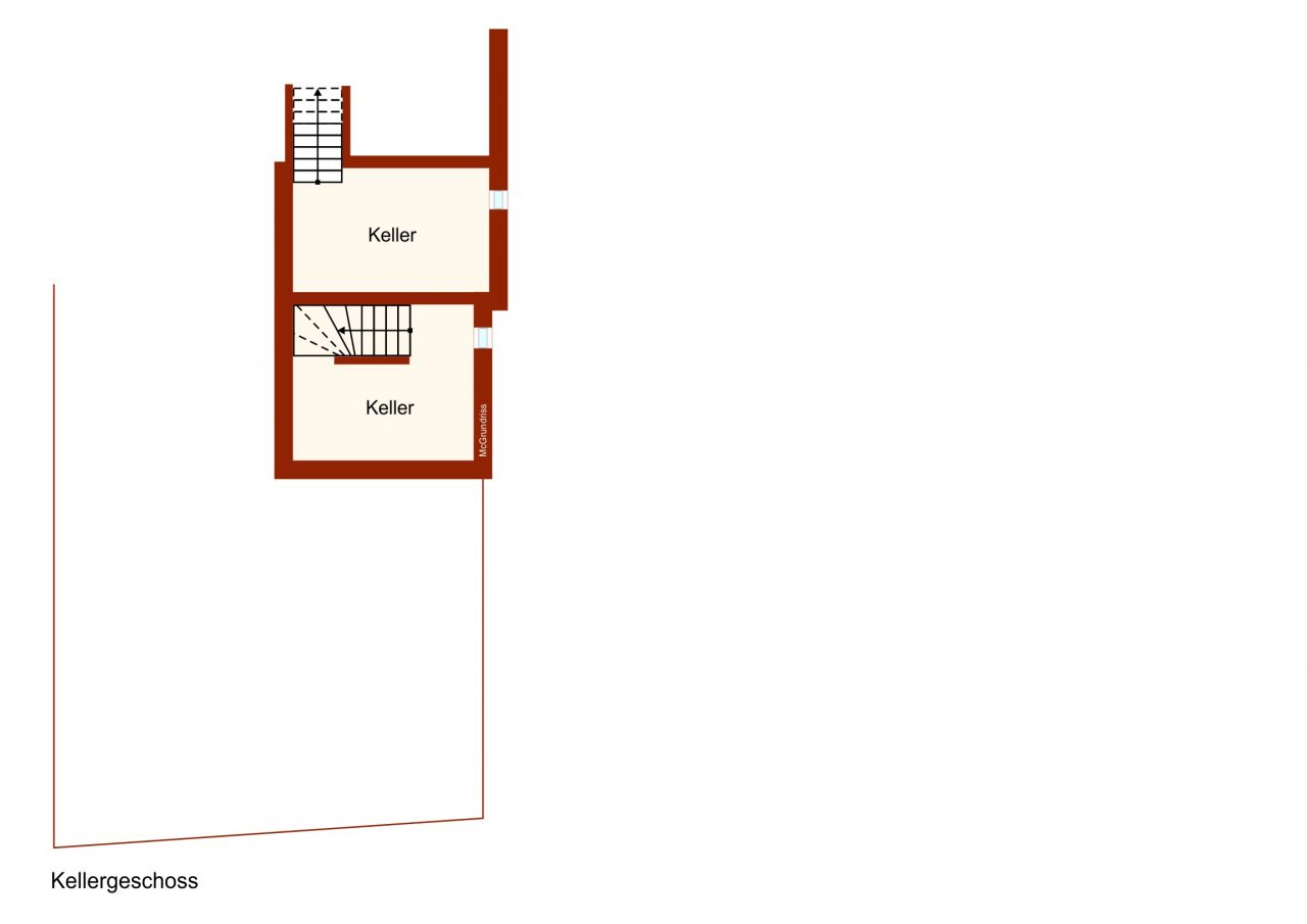
Grundriss KG
























Preis:
Preis auf Anfrage
Wohnfläche ca.:
390 m²
Grundstück ca.:
220 m²
Zimmeranzahl:
9
*Diese Immobilie ist bereits verkauft.
Lassen Sie sich bei uns vormerken und erhalten bevorzugt neue Objekte!*
In guter Coburger Innenstadtlage wurde das ursprüngliche Handwerkerhaus als eingeschossiger Bau mit einer Stube im Jahre 1588 und 1700 errichtet. Es folgte 1781 ein weitreichender Umbau durch Johann Michael Hartmann und wurde 1833 und 1869 verbreitert und aufgestockt.
Mittlerweile umfasst das Anwesen, bestehend aus Vorder- und Hinterhaus mit kleinem Innenhof, insgesamt 5 voneinander getrennte Wohneinheiten.
Die Aufteilung und Ausstattung stellt sich wie folgt dar:
Vorderhaus Erdgeschoss:
2-Zimmer Wohnung mit ca. 49m² - nicht vermietet
Sanierungsbedürftig (Arbeiten wurden bereits begonnen)
Holzfenster 2007 erneuert
Leitungen für Elektrik und Heizung bereits vorbereitet
Vorderhaus 1. Obergeschoss links:
2-Zimmer Wohnung mit ca. 47m² - vermietet 300,- € kalt
Renoviert, Gas-Therme aus den 90er Jahren
Kunststofffenster 2010…
Vorderhaus 1. Obergeschoss rechts:
2-Zimmer Wohnung mit ca. 56m² - vermietet 320,- € kalt
Renoviert, Gas-Therme aus den 90er Jahren
Kunststofffenster 1998
Mit Balkon zum Innenhof
Vorderhaus Dachgeschoss:
4-Zimmer Wohnung mit ca. 86m² - bewohnt durch Eigentümer
Renoviert, Gas-Therme 2006
Kunststofffenster 1988/1992
Mit Balkon zum Innenhof
Desweiteren befinden sich im Dachgeschoss weitere Räume, die zum Teil als Gästezimmer (renovierungsbedürftig) oder Lager genutzt werden
Das Hinterhaus umfasst auf ca. 160m² Fläche über 2 Ebenen verteilt weiteres Ausbaupotential. Hierbei ist zu berücksichtigen, dass umfangreiche Sanierungs- und Renovierungsarbeiten notwendig sind.
Das Anwesen liegt im Sanierungsgebiet von Coburg.
Haustyp: Mehrfamilienhaus
Provisionspflichtig: ja
Provision: 4,76% inkl. MwSt
Keller: teil unterkellert
Denkmalschutzobjekt: ja
vermietet: ja
Baujahr: 1781
Unser Provisionsanspruch in Höhe von 4,64% inkl. der gesetzlichen Mehrwertsteuer besteht und wird fällig, sobald aufgrund unseres Nachweises bzw. unserer Vermittlung oder Inanspruchnahme unserer Maklertätigkeit bezüglich des von uns benannten Objektes ein Vertrag geschlossen bzw. beurkundet worden ist.
Alle Angaben sind ohne Gewähr und basieren ausschließlich auf Informationen, die von unserem Auftraggeber übermittelt wurden. Wir übernehmen ausdrücklich keine Gewähr für die Vollständigkeit, Richtigkeit und Aktualität dieser Angaben.
Sie denken ebenfalls an den Verkauf Ihres Objektes?
Gerne bewerten wir auch Ihre Immobilie unverbindlich und kostenfrei.
Bei einer Immobilienvermittlung geht es um Werte. Und genau diese Werte wissen wir seit vielen Jahren zu schätzen. Darüber hinaus ist unser Ziel unseren Kunden nicht nur ein gutes Geschäft, sondern auch ein gutes Gefühl zu vermitteln. Natürlich spielt die Immobilie dabei eine wichtige Rolle, doch der Mensch steht bei uns im Mittelpunkt!
Wenn Makler – dann Reinhardt!
Wir weisen auf unsere Allgemeinen Geschäftsbedingungen hin. Durch weitere Inanspruchnahme unserer Leistungen erklären Sie die Kenntnis und Ihr Einverständnis.
Das könnte Ihnen auch gefallen
VERKAUFT - Beliebtes Gasthaus mit tollem Saal, Gästezimmern und Wohneinheit!
VERKAUFT - GELEGENHEIT: Wohn- und Geschäftshaus in Coburgs historischer Altstadt!
VERKAUFT - Ihr modernes & großzügiges Zuhause der vielen Möglichkeiten!

Immobilien Reinhardt GmbH
Herr Daniel Sam
Neustadter Straße27
96450 Coburg
Telefon: +49 9561 4079790
Mobil: +49 175 5315602
Fax: +49 9561 4079799








































