Coburg:
VERKAUFT - Mehrfamilienhaus mit Veste-Blick in ruhiger Lage von Coburg-Stadt
Objekt-Nr.: 686

Vorderansicht

Innenhof

Veste-Blick vom Dach

Seitenansicht

Innenhof Garten

Wohnen EG Nr. 1

Wohnen EG Nr. 2

Treppenhaus 1. OG

Schlafen 1.OG Nr. 3

Wohnen 1.OG Nr. 3

Wohnen 1.OG Nr. 4

Schlafen 1.OG Nr. 4

Treppenhaus 2.OG 1.OG

Küche mit Veste-Blick 2.OG Nr. 5

Wohnen Arbeiten mit Veste-Blick 2.OG Nr. 5

Schlafen mit Veste-Blick 2.OG Nr. 5

Wohnen Essen mit Schwedenofen 2.OG Nr. 5

Grundriss Erdgeschoss

Grundriss 1. Obergeschoss

Grundriss 2. Obergeschoss

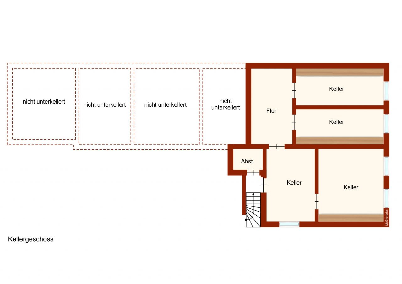
Grundriss Kellergeschoss





















Preis:
Preis auf Anfrage
Wohnfläche ca.:
260 m²
Grundstück ca.:
220 m²
Zimmeranzahl:
12
*Diese Immobilie ist bereits verkauft.
Lassen Sie sich bei uns vormerken und erhalten bevorzugt neue Objekte!*
In einer begehrten innenstadtnahen und dennoch ausgesucht ruhigen Lage, finden Sie dieses interessante Mehrfamilienhaus. Es ist bereits in 5 Teileigentumseinheiten aufgeteilt. Jeweils zwei kleine Einheiten im EG und im 1. OG sowie eine große Wohnung im 2. Obergeschoss.
Bereits im 1. Obergeschoss haben Sie einen wunderbaren Vesteblick, noch besser in der 2. Etage. Über eine Dachluke gelangen Sie aus dieser Wohnung auf das Dach und überlegen sich vielleicht, wie spektakulär es wohl wäre, wenn Sie genau hier eine Dachterrasse bauen würden … den sensationellen Blick über die Dächer und unverbaubar zur Veste Coburg sehen Sie auf unserem zweiten Bild!…
Das 220 m² große Grundstück wird in dieser Lage von der Stadt Coburg mit einem Bodenrichtwert von 245 € / m², also 53.900 € bewertet. Aber eigentlich ist es noch wertvoller, da es in so einer Lage kein Grundstück zu kaufen gibt, welches mit einem Mehrfamilienhaus bebaut werden könnte.
Die Gesamtwohnfläche beträgt ca. 260 m².
Das Haus ist teilunterkellert.
Ein kleiner begrünter Innenhof steht zur Verfügung. Ein heimeliger Ort, um einmal den Grill aufzustellen oder zum Relaxen. Eine Seltenheit in dieser innenstadtnahen Lage.
Renovierungen und Modernisierungen sind erforderlich.
Aber Sie wissen ja: Lage, Lage, Lage!
Und hier lohnt sich die Investition!
Zu Fuß, zu modernen Supermärkten und nur wenige Gehminuten in die City!
Wünschen sich das nicht die meisten Interessenten?
Haustyp: Mehrfamilienhaus
Etagenanzahl: 3
Provisionspflichtig: ja
Provision: 3,57 % inkl. MwSt
Anzahl Schlafzimmer: 6
Anzahl Badezimmer: 4
Keller: teil unterkellert
Umgebung: Einkaufsmöglichkeit, Kindergarten, ruhige Gegend, Wohngegend
Baujahr: 1894
Verfügbar ab: sofort
Zustand: renovierungsbedürftig
Heizung: Etagenheizung, Ofenheizung
Befeuerungsart: Elektro, Gas, Holz
Energieausweistyp: Bedarfsausweis - gültig vom 20.04.2016 bis 19.04.2026
Energieeffizienz-Klasse: G
Baujahr laut Energieausweis: 1894
Unser Provisionsanspruch in Höhe von 3,57 % inkl. der gesetzlichen Mehrwertsteuer besteht und wird fällig, sobald aufgrund unseres Nachweises bzw. unserer Vermittlung oder Inanspruchnahme unserer Maklertätigkeit bezüglich des von uns benannten Objektes ein Vertrag geschlossen bzw. beurkundet worden ist.
Alle Angaben sind ohne Gewähr und basieren ausschließlich auf Informationen, die von unserem Auftraggeber übermittelt wurden. Wir übernehmen ausdrücklich keine Gewähr für die Vollständigkeit, Richtigkeit und Aktualität dieser Angaben.
Sie denken ebenfalls an den Verkauf Ihres Objektes?
Gerne bewerten wir auch Ihre Immobilie unverbindlich und kostenfrei.
Bei einer Immobilienvermittlung geht es um Werte. Und genau diese Werte wissen wir seit vielen Jahren zu schätzen. Darüber hinaus ist unser Ziel unseren Kunden nicht nur ein gutes Geschäft, sondern auch ein gutes Gefühl zu vermitteln. Natürlich spielt die Immobilie dabei eine wichtige Rolle, doch der Mensch steht bei uns im Mittelpunkt!
Wenn Makler – dann Reinhardt!
Wir weisen auf unsere Allgemeinen Geschäftsbedingungen hin. Durch weitere Inanspruchnahme unserer Leistungen erklären Sie die Kenntnis und Ihr Einverständnis.
Das könnte Ihnen auch gefallen
VERKAUFT - GELEGENHEIT: Wohn- und Geschäftshaus in Coburgs historischer Altstadt!
VERKAUFT - Modernes Bürogebäude mit Galerie, Gartenteich, Garage u. 8 Stellplätzen in Coburg!

Immobilien Reinhardt GmbH
Herr Klaus Scherbel
Neustadter Str. 27
96450 Coburg
Telefon: +49 9561 4079790
96450 Coburg































